[3200GT] Commande ne répond plus

Décrivez votre problème...
Avatar de l’utilisateur
bay
W16
Messages : 7322
Inscription : sam. 1 août 2015 20:34
Localisation : 0
Localisation : Belgique
Contact :

Re: [3200GT] Commande ne répond plus

Message par bay »

Froggie a écrit :
gemini a écrit :Très probablement.
Mais j'imagine que celle-ci sert à garder le code en mémoire.
Une fois à plat, plus de code.

Recharger cette batterie ne sert donc à rien...
J'aurais tendance à croire qu'un code donné reste stocké en mémoire, même si la batterie de la clé/télécommande est déchargée.
Un peu comme des infos stockées dans une clé USB.


Maintenant, si ta télécommande génère un nouveau code à chaque fois et que la base de codage a été déréglée par une pile morte, alors là c'est cramé...
C'est certain ;) C'est également mon avis ;)
:Maze Maserati Granturismo S Aut. 4,7 V8 Blu Oceano / Sabbia # 47902 Ass. 48898 Engine 148469


le registre Gransport MC Victory

Jeremy Clarkson. "tout passionné d'automobile doit avoir eu une Alfa-Romeo au moins une fois dans sa vie"
gemini
W16
Messages : 8856
Inscription : lun. 20 juin 2011 23:01
Localisation : Hainaut, Belgique

Re: [3200GT] Commande ne répond plus

Message par gemini »

La plupart des 3200 ont leur sirène qui ne fonctionne plus (quand elles en sont pas simplement débranchées) et cela n'a jamais posé de soucis avec la centralisation à distance.

Je ne vois pas ce que la sirène peut avoir comme rapport avec l'ouverture.

Quant à la désynchronisation, si ça n'existait pas, abacus n'offrirait pas le service de resynchro. (il suffit de leur envoyer le boitier et la carte electronique dans chaque clef, pas la sirène).

J'ai vu des trucs avec la sirene sur ferrarichat, mais dans leurs cas, la led reste allumée, pour signaler un soucis. Ici la led clignote, comme quand l'alarme est mise (ça peut le faire quand on coupe la batterie porte ouverte, ou fermée je ne sais plsu, et il suffit de rouvrir fermer avec la telecommande).
“What this button does is it turns carbon dioxide into noise.” J Clarkson
Merak - Biturbo SI - Shamal - Ghibli Cup 2800 - 3200GT AC - MC Victory
Avatar de l’utilisateur
Froggie
W16
Messages : 9029
Inscription : jeu. 12 oct. 2017 23:50
Localisation : 0
Localisation : Bruxelles, Belgique

Re: [3200GT] Commande ne répond plus

Message par Froggie »

De ce que je comprends, ta clé fonctionne pour démarrer.
Seulement la commande à distance ne fonctionne pas.
Es-tu sûr que le transpondeur (l'antenne qui envoie le signal à la voiture) fonctionne encore?
Et/ou est-ce que tu observes le même dysfonctionnement pour tes deux clefs (ce qui écarterait en principe la panne de transpondeur d'une clef)?
gemini
W16
Messages : 8856
Inscription : lun. 20 juin 2011 23:01
Localisation : Hainaut, Belgique

Re: [3200GT] Commande ne répond plus

Message par gemini »

Toutes les clefs.
Et j'ai vérifié leur batterie.

Certain que le problème n'est pas coté clefs.
“What this button does is it turns carbon dioxide into noise.” J Clarkson
Merak - Biturbo SI - Shamal - Ghibli Cup 2800 - 3200GT AC - MC Victory
Avatar de l’utilisateur
Konimino2
W18
Messages : 10319
Inscription : mar. 25 avr. 2017 23:54
Localisation : 67

Re: [3200GT] Commande ne répond plus

Message par Konimino2 »

Le transpondeur anti démarrage c est ce qui est entouré en rouge t 5 id33
462357FA-7C40-4733-BCF1-32329D962606.jpeg
L émetteur de la télécommande ouverture de porte et alarme c est un circuit meta développé pour maserati. Le circuit en vert.

Les deux sont disjoints totalement.

Il faut approfondir la connaissance des alarmes meta.
Avatar de l’utilisateur
Gio
V8
Messages : 1740
Inscription : mer. 13 mai 2015 13:24
Localisation : 59
Localisation : Lille - Le Touquet

Re: [3200GT] Commande ne répond plus

Message par Gio »

Joeley n’est plus sur le forum ? Il était plutôt compétent sur l’électronique des voitures ..
Ex 3200 GTA
Ex Granturismo 4.2
Ex 4200 Cambiocorsa
Avatar de l’utilisateur
Cooldent
V8
Messages : 1096
Inscription : mar. 2 avr. 2019 10:20
Localisation : 0
Localisation : Belgique (dans le fond du jardin de Gemini)

Re: [3200GT] Commande ne répond plus

Message par Cooldent »

Futur tuto en perspective.
Reste à savoir de quelle couleur sera le patient :?:
If you can't fix it with duct tape, you're not using enough duct tape!

ex 3200 GTA Giallo Granturismo import Japan Pikachu
Gransport Nero Carbonio 10th Anniversary Maserati - Cornes import Japan

Image
Avatar de l’utilisateur
plm
W18
Messages : 10382
Inscription : sam. 26 déc. 2015 12:43
Localisation : 51
Localisation : Muizon (Reims)

Re: [3200GT] Commande ne répond plus

Message par plm »

Gio a écrit :Joeley n’est plus sur le forum ? Il était plutôt compétent sur l’électronique des voitures ..
Son dernier message date du 19 juin. Ca n'est pas encore une année sur une ile déserte....
Biturbo Spyder 2.8
Ghibli II 2.8
Image
Image
Avatar de l’utilisateur
joeley
V12
Messages : 4848
Inscription : mer. 13 juil. 2016 11:29
Localisation : 26

Re: [3200GT] Commande ne répond plus

Message par joeley »

Quand je ne sais pas, je ne dis rien. ;)
Merci Gio. ;) ;)
3200GT Boîte Manu Giallo Granturismo
gemini
W16
Messages : 8856
Inscription : lun. 20 juin 2011 23:01
Localisation : Hainaut, Belgique

Re: [3200GT] Commande ne répond plus

Message par gemini »

Bon, après avoir encore un peu creusé le sujet, il me semble qu'il n'est pas indispensable de repartir sur une alarme Meta, pour ce que j'en vois, les branchements sont toujours identiques, pour autant que ce ne soit pas une alarme pour véhicule avec can-bus, ça devrait fonctionner.

Aussi, vu que l'on peut choisir n'importe quel modèle, je vais remédier à un truc qui m'embête sur la 3200, l'ouverture du coffre, je trouve le bouton dans l'habitacle très peu pratique pour charger (c'est le moins que l'on puisse dire), et l'emplacement pour la clef sur le coffre pas des plus aisés d'accès.

Certains systèmes, en plus de permettre l'ouverture des portes, proposent un bouton pour l'ouverture du coffre, ça peut être pratique.

Je regarde ce que je trouve à bon prix, et on voit si ça marche (au pire, si ça ne marche pas, je pourrai toujours l'installer sur la ghibli :oops: )
“What this button does is it turns carbon dioxide into noise.” J Clarkson
Merak - Biturbo SI - Shamal - Ghibli Cup 2800 - 3200GT AC - MC Victory
Avatar de l’utilisateur
Froggie
W16
Messages : 9029
Inscription : jeu. 12 oct. 2017 23:50
Localisation : 0
Localisation : Bruxelles, Belgique

Re: [3200GT] Commande ne répond plus

Message par Froggie »

Si je comprends bien, tu vas changer tout le système: émetteur (la télécommande) et le récepteur (un ou plusieurs dispositifs dans la voiture)?
Afin d'avoir:
- une télécommande d'ouverture des portes;
- une télécommande d'ouverture de coffre; et
- permettant encore le déclenchement de l'alarme.
Toussa étant compatible avec l'ECU et le multiplexage de la voiture...
Intéressé et curieux, je suis :?
gemini
W16
Messages : 8856
Inscription : lun. 20 juin 2011 23:01
Localisation : Hainaut, Belgique

Re: [3200GT] Commande ne répond plus

Message par gemini »

En fait sur la 3200, le systeme meta fait office d'alarme et de centralisation de porte (enfin non, la centralisation a sa propre centrale, mais l'alarme communique avec pour lui dire, j'ai reçu l'impulsion, fait ton job et ouvre).
En sus de l'alarme, il y a l'immobilisateur qui est tout à fait indépendant.
Une panne de ce dernier est par ailleurs plutôt très problématique, la voiture ne roule pas, et le seul moyen de réparer et de remplacer l'immob ET l'ecu (ou de reprogrammer, mais faut trouver quelqu'un qui sait faire, et ça ne semble pas courir les rues).

Concernant l'alarme meta donc, le système est très permissif, il n'empêche pas le démarrage.
Il est par ailleurs tout à fait possible de débrancher le boitier et de rouler sans alarme, la voiture s'en fout.

Il faut la prendre pour une boite qui :
1. Communique avec une télécommande, et peut sur demande de cette dernière se désactiver (couper l'alarme) et ordonner à la centrale l'ouverture des portes.
2. Communique avec l'un ou l'autre capteur (au niveau des portes, du coffre, et il me semble le capot) pour déclencher l'alarme si ouverture de ceux-ci alarme branchée
3. Communique avec les feux pour les faire clignoter lors du déclenchement.

Et c'est tout.

On peut donc la remplacer par uniquement un boitier qui gère l'ouverture des portes (un truc tout con, alimenté en 12v par la batterie, en cas de clic sur la télécommande, ça envoie le message pour ouvrir les portes) ou un système hypercomplet (avec ouverture des portes, du coffre, alarme volumétrique, périmétrique, bouton de démarrage, sirène auto alimentée ou pas). Enfin, tous les gadgets que tu peux imaginer.

Dans mon cas, télécommande + alarme suffit je pense.

Et à priori, ça coute pas grand chose (j'en suis à une cinquantaine d'euro, mais je regarde encore).

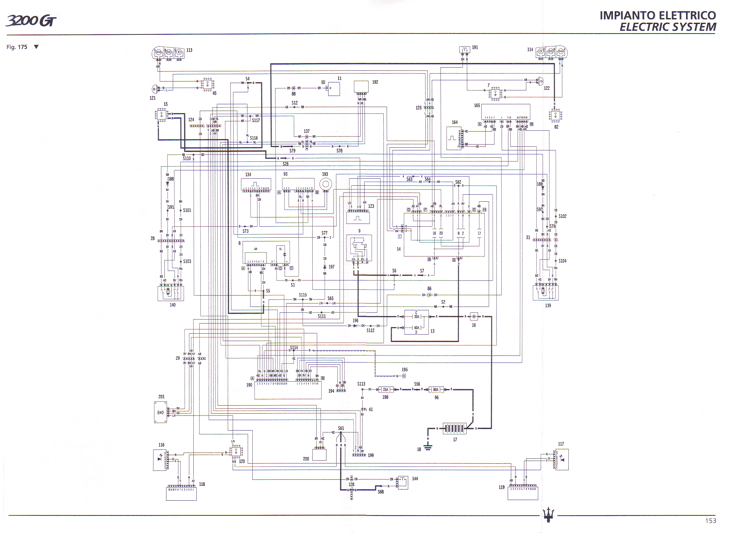
Voilà le schéma, c'est tout simple.
Il y a deux connections entre la centrale d'alarme et la central qui gère l'ouverture des fenêtre (qui elle même gère l'ouverture).
Elles arrivent sur les pin 17 et 18 et partent de la pin 1A et 5B de l'alarme.

Ca a l'air compliqué mais ça ne devrait pas.
Si quelqu'un a une imprimante A3 (ou a2) :mrgreen:
3200gth-153.gif
“What this button does is it turns carbon dioxide into noise.” J Clarkson
Merak - Biturbo SI - Shamal - Ghibli Cup 2800 - 3200GT AC - MC Victory
Avatar de l’utilisateur
Froggie
W16
Messages : 9029
Inscription : jeu. 12 oct. 2017 23:50
Localisation : 0
Localisation : Bruxelles, Belgique

Re: [3200GT] Commande ne répond plus

Message par Froggie »

Typiquement le genre de diagramme qui me donne de l'urticaire.
(et j'imagine que pour 3200 c'est encore relativement simple par rapport aux modèles qui ont suivi où il y a carrément des boîtes noires...)
Mais c'est bien que tu sois immunisé ;)
On suit :)
Avatar de l’utilisateur
joeley
V12
Messages : 4848
Inscription : mer. 13 juil. 2016 11:29
Localisation : 26

Re: [3200GT] Commande ne répond plus

Message par joeley »

C'est pas si compliqué que ça, et ça fait plaisir de voir quelqu'un qui prend le temps de chercher à comprendre. Et sur n'importe quel sujet.
Encore une fois bravo ;) et merci. ;) ;)
3200GT Boîte Manu Giallo Granturismo
Avatar de l’utilisateur
Froggie
W16
Messages : 9029
Inscription : jeu. 12 oct. 2017 23:50
Localisation : 0
Localisation : Bruxelles, Belgique

Re: [3200GT] Commande ne répond plus

Message par Froggie »

Toutafé d'accord ;)
Avatar de l’utilisateur
Cooldent
V8
Messages : 1096
Inscription : mar. 2 avr. 2019 10:20
Localisation : 0
Localisation : Belgique (dans le fond du jardin de Gemini)

Re: [3200GT] Commande ne répond plus

Message par Cooldent »

Bravo Gemini.
Je dois avouer que je traînais un peu les pieds pour investiguer ce soucis chez moi.
Mais si tu nous trouves la solution facile, pas chère et complète, c'est gagné, tu as ta statue dans le jardin :lol:
If you can't fix it with duct tape, you're not using enough duct tape!

ex 3200 GTA Giallo Granturismo import Japan Pikachu
Gransport Nero Carbonio 10th Anniversary Maserati - Cornes import Japan

Image
Avatar de l’utilisateur
Konimino2
W18
Messages : 10319
Inscription : mar. 25 avr. 2017 23:54
Localisation : 67

Re: [3200GT] Commande ne répond plus

Message par Konimino2 »

Cooldent a écrit :Bravo Gemini.
Je dois avouer que je traînais un peu les pieds pour investiguer ce soucis chez moi.
Mais si tu nous trouves la solution facile, pas chère et complète, c'est gagné, tu as ta statue dans le jardin :lol:
Tu veux dire qu elle n est pas encore installée?
Avatar de l’utilisateur
Gianni
V12
Messages : 4528
Inscription : lun. 5 août 2013 12:49
Localisation : 33
Localisation : Bordeaux

Re: [3200GT] Commande ne répond plus

Message par Gianni »

moi aussi, je pensais que c'était déjà le cas.
Gemini Giant devant le Launching Pad Cafe de Wilmigton
Gemini Giant devant le Launching Pad Cafe de Wilmigton
Gemini_Giant_on_66.jpg (91.39 Kio) Consulté 1661 fois
Ghibli II Open Cup "Denny Zardo" - 1995 - Rosso Maserati
3200 GTA Assetto Corsa - 2002 - Blu Nettuno
ex-3200 GT - 1999 - Grigio Touring
ex-Ghibli II 2,8 GT - 1998 - Blu Nettuno
ex-Gransport 10th Anniversary - 2007 - Nero Carbonio
Avatar de l’utilisateur
Dom3200
V8
Messages : 2164
Inscription : ven. 18 mars 2016 16:11
Localisation : 91
Localisation : Essonne

Re: [3200GT] Commande ne répond plus

Message par Dom3200 »

J'ai bien cru hier que j'étais victime d'une malédiction après avoir fait trop de blagues Belges étant petit. Après avoir changé mes bobines et impatient d'aller faire un petit tour, je remets le coupe contact et bip la télécommande, rien, puis rien puis rien... Ca n'empêche pas de démarrer, mais rouler avec les warning en mode alarme bof :lol:
Après quelques essais, j'ai réussi avec le tout petit peu de reste de piles de la 2° clé.. Aujourd'hui achat de 4 piles CR1220 (2 par clé) et tout marche nickel. Pffff promis je mets un cierge la prochaine fois que je passe devant le manneken pis
3200 GT Juil 2001 / RACING Nov 1991
gemini
W16
Messages : 8856
Inscription : lun. 20 juin 2011 23:01
Localisation : Hainaut, Belgique

Re: [3200GT] Commande ne répond plus

Message par gemini »

J'ai lourdement investi pour remplacer ce boitier.
Un système à 34 euro. :oops:

Faudrait peut-être que je change mes piles toute de même, mais bon, au voltmetre, elles semblaient bonnes...
“What this button does is it turns carbon dioxide into noise.” J Clarkson
Merak - Biturbo SI - Shamal - Ghibli Cup 2800 - 3200GT AC - MC Victory
Répondre